
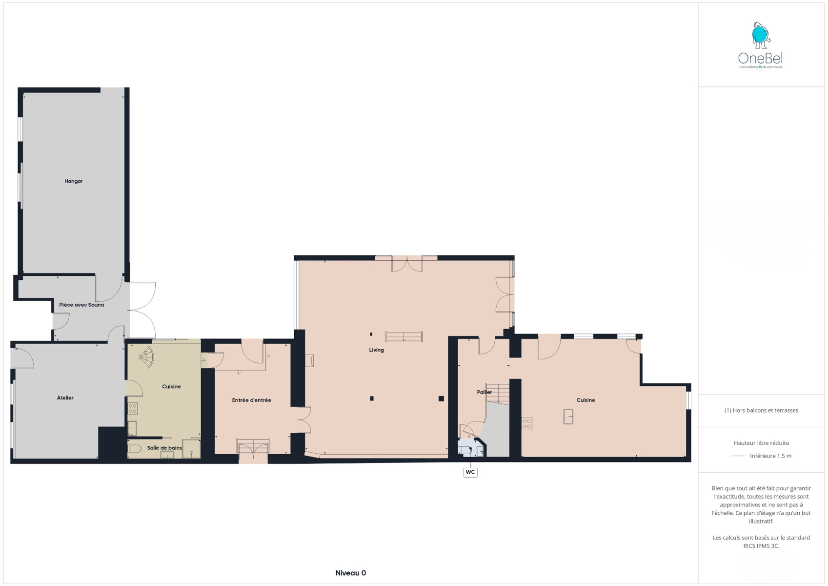
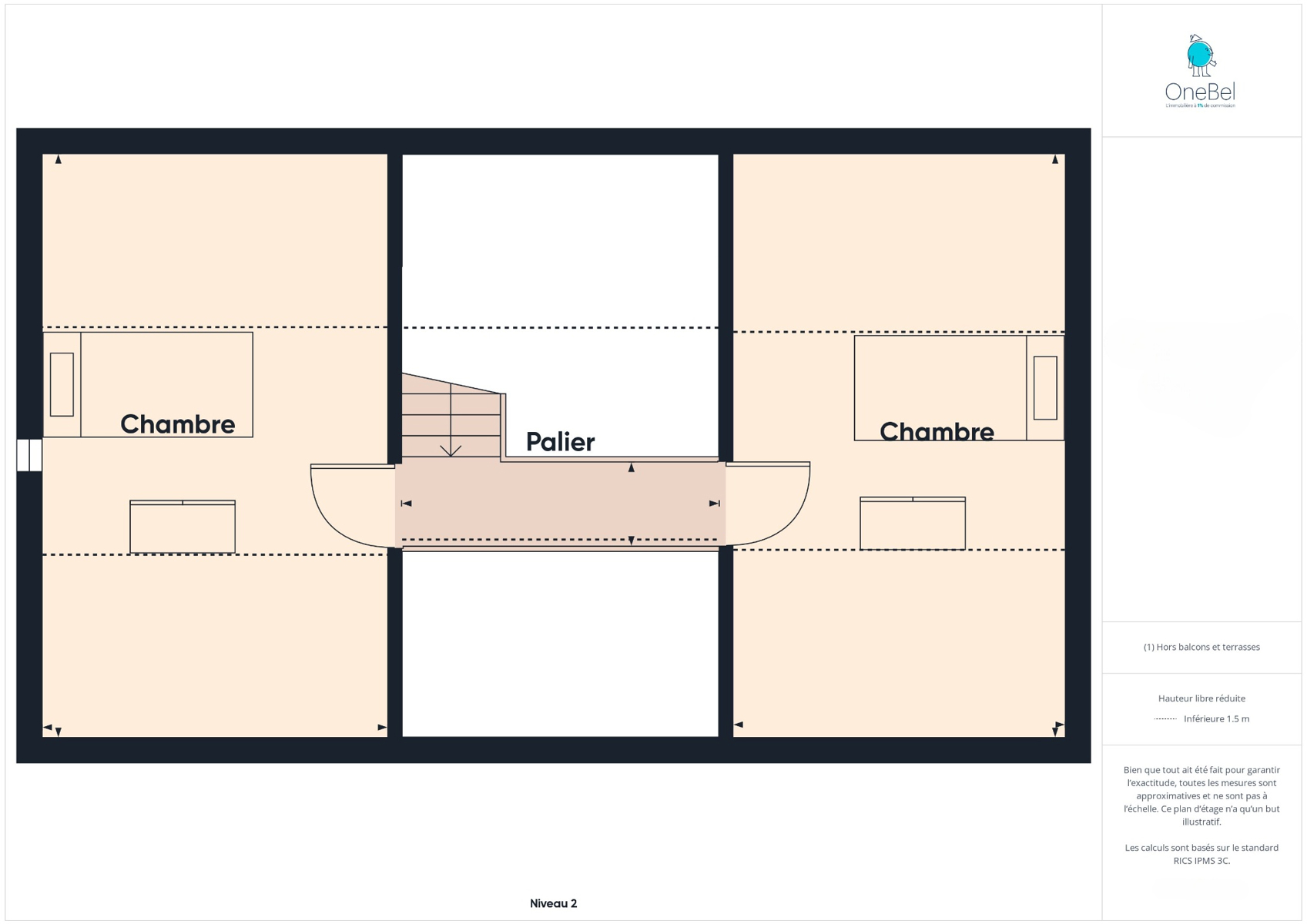
Á 5 min de Lillois-Witterzée, dans le village de Promelles - Il est des lieux qui ont une âme… Cette ancienne ferme du château féodal de Promelles, rénovée en 2009, en est un parfait exemple. Ici, chaque détail — poutres apparentes, briques anciennes, volumes généreux — reflète une alliance subtile entre le charme de l'ancien et l'élégance contemporaine. Dès l’entrée, la magie opère: un vaste living baigné de lumière avec une grande cheminée. La cuisine, spacieuse et conviviale, est animée par un poêle à bois, pour des moments chaleureux en famille ou entre amis. Développant plus de 485 m²de surf(selon PEB), la maison propose 8 chambres, dont un appartement indépendant, trois salles de bain, une master room avec dressing et salle de bain, une grande family room, un sauna et de nombreuses possibilités d’aménagement avec le hangar (54m2) et l'atelier (30m2). À l’extérieur, le charme se prolonge: jardin clôturé, terrasse avec pergola, piscine avec pool house, et un majestueux saule pleureur qui confère à l'ensemble une atmosphère unique. Quatre emplacements de parking, extensibles, ainsi qu'une borne de recharge complètent ce lieu rare. La propriété bénéficie d’un accès rapide vers Bruxelles, Nivelles et Charleroi, combinant ainsi cadre de vie bucolique et excellente accessibilité. Très bien isolée, PEB C, elle dispose également de 16 pan. sol. Bref un lieu unique. Toutes les informations sont données à titre indicatif et sont non contractuelles.
Référence | 7132228 |
---|---|
Catégorie | Bien exceptionnel |
Nombre de chambres | 8 |
Nombre de salles de bain | 3 |
Jardin | Oui |
Garage | Oui |
Terrasse | Oui |
Surface habitable | 485 m² |
Surface du terrain | 2211 m² |
Disponibilité | à l'acte |
Année de construction | 1600 |
---|---|
Nombre de garage | 0 |
Parking extérieur | Oui |
Nombre d'étages | 2 |
---|
Cuisine | Oui |
---|---|
Chauffage (ind/coll) (type (ind/coll)) | individuel |
Ascenseur | Non |
Double vitrage | Oui |
Chauffage (type) | mazout (chauf. centr.) |
Type de cuisine | amer. super-équipée |
Nbre de toilette(s) (nombre) | 4 |
---|---|
Nombre de sdd | 1 |
Chambre 1 (surface) | 56 m² |
Chambre 2 (surface) | 22 m² |
Chambre 3 (surface) | 21 m² |
Chambre 4 (surface) | 18 m² |
Chambre 5 (surface) | 18 m² |
Salle de séjour (surface) | 66 m² |
Cuisine (surface) | 46 m² |
Possibilité profession libérale (surface) | 144 m² |
Bureau | Oui |
---|---|
Cave | Oui |
Piscine | Oui |
---|
Égouts | Oui |
---|---|
Électricité | Oui |
Télévision par cable | Oui |
Câbles téléphoniques | Oui |
Eau | Oui |
Point de charge pour véhicules électriques | Oui |
Type d'environnement | Vue dégagée |
---|---|
Risque d'inondation (type innondation) | pas situé en zone inondable |
Magasins | Oui |
---|---|
Ecoles | Oui |
Transports en commun | Oui |
Centre sportif | Oui |
Autoroute | Oui |
Label PEB (classe) | C |
---|---|
PEB E-SPEC (kwh/m²/an) | 249 |