
VIEUX-GENAPPE - Sommige plekken hebben een ziel... Deze voormalige boerderij van het feodale kasteel van Promelles, zorgvuldig gerenoveerd in 2009, is daar een perfect voorbeeld van. Hier weerspiegelt elk detail - zichtbare balken, oude bakstenen, grote volumes - een subtiele mix van ouderwetse charme en hedendaagse elegantie. Meteen vanaf de ingang gebeurt de magie: een grote woonkamer baadt in het licht met een groot open haard. De keuken, ruim en gezellig, wordt verlevendigd door een houtkachel, voor warme momenten met familie of vrienden. Met een oppervlakte van 485 m² (volgens PEB) biedt het huis 8 slaapkamers, waaronder een onafhankelijk appartement, drie badkamers, een grote slaapkamer met kleedkamer en badkamer, een grote familiekamer, een sauna en tal van mogelijkheden voor verbouwing met de hangar en werkplaats. Buiten gaat de charme verder: omheinde tuin, terras met pergola, zwembad met poolhouse, en een majestueuze treurwilg die het pand een unieke sfeer geeft. Vier uitschuifbare parkeerplaatsen en een laadstation maken deze zeldzame omgeving compleet. Gelegen in het dorp Promelles, geniet het eigendom van een snelle toegang tot Brussel, Nijvel en Charleroi, wat een bucolische levensstijl combineert met een uitstekende bereikbaarheid. Zeer goed geïsoleerd, EPC C, heeft het ook 16 sol. pan. Een unieke, tijdloze plek om te ontdekken. Alle informatie en afmetingen zijn indicatief en niet contractueel.
Referentie | 7068149 |
---|---|
Categorie | Buitengewoon huis |
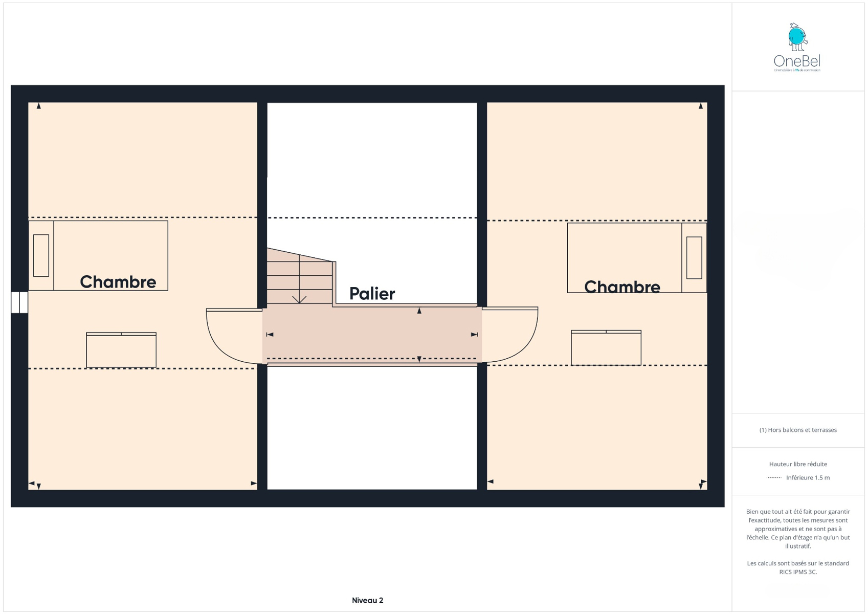
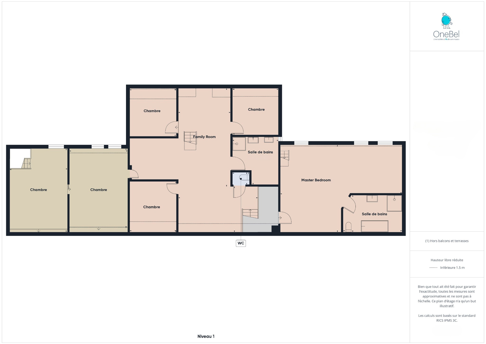
Aantal kamers | 8 |
Aantal badkamers | 3 |
Tuin | Ja |
Garage | Ja |
Terras | Ja |
Bewoonbare oppervlakte | 485 m² |
Oppervlakte van het terrein | 2211 m² |
Beschikbaarheid | vanaf akte |
Bouwjaar | 1600 |
---|---|
Aantal garages | 0 |
Parking buiten | Ja |
Verdiepingen - aantal | 2 |
---|
Keuken | Ja |
---|---|
Type verwarming | individueel |
Lift | Nee |
Dubbele beglazing | Ja |
Type verwarming | stookolie cv |
Keuken - type | VS volledig geïnstalleerd |
Toiletten - aantal | 4 |
---|---|
Aantal douchekamers | 1 |
Slaapkamer 1 | 56 |
Slaapkamer 2 | 22 |
Slaapkamer 3 | 21 |
Slaapkamer 4 | 18 |
Slaapkamer 5 | 18 |
Woonkamer | 66 |
Keuken | 46 |
Ruimte vrij beroep | 144 |
Bureau | Ja |
---|---|
Kelder | Ja |
Zwembad | Ja |
---|
Riolering | Ja |
---|---|
Elektriciteit | Ja |
Kabeltelevisie | Ja |
Telefoonbekabeling | Ja |
Water | Ja |
Oplaadpunt voor elektrische voertuigen | Ja |
Type buurt | Vrij zicht |
---|---|
O-Peil | niet gelegen in een overstromingsgevoelig gebied |
Winkels in de buurt | Ja |
---|---|
Scholen in de buurt | Ja |
Openbaar vervoer in de buurt | Ja |
Sportcentrum in de buurt | Ja |
Autostrade in de buurt | Ja |
EPC-klasse | C |
---|---|
EPC (Kwh/m²/j) | 249 Kwh/m²/j |